guideoai.lu is loading...

LEUFEN, ARCHITECTE + URBANISTE
Diplom-Ingénieur, TU Braunschweig

Contact

15a, Blvd.Grande-Duchesse Charlotte
L-1331 Luxembourg

T 00352 / 27 28 20 10
M 00352 / 621 647 185

tom@leufen-architecte.lu
www.leufen-architecte.lu


Domaines d'activité

nouvelle construction

extension

aménagement et rénovation

études d’urbanisme

privé et publique

Share this office
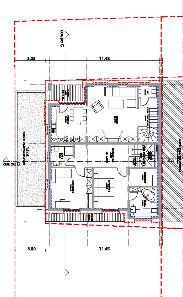
public://import2025/images/PLAN1_leufen-thomas-ap-1859_construction-d-une-maison-mondorf_opt.jpg 1 Mondorf, rte. d‘Ellange, maison avec logement integré (en construction en 2025)
 a) vues en plan: rez-de-chaussée + 1er étage
 b) facade jardin
 c) situation 2025 (en construction)
 


 


 


 

ancienne situation ancienne situation
 

Canach, rue d‘Oetrange, aménagement et extension d‘un petit villa (en construction en 2025) Canach, rue d‘Oetrange, aménagement et extension d‘un petit villa (en construction en 2025)
 

vue vers jardin vue vers jardin
 

ancienne situation ancienne situation
 

Luxembourg-Bonnevoie, rue Pierre Krier: extension living Luxembourg-Bonnevoie, rue Pierre Krier: extension living
 

public://import2025/images/PLAN1_leufen-thomas-ap-1859_construction-d-une-maison-mondorf_opt.jpg 1 Mondorf, rte. d‘Ellange, maison avec logement integré (en construction en 2025)
 a) vues en plan: rez-de-chaussée + 1er étage
 b) facade jardin
 c) situation 2025 (en construction)
 


 


 


 

ancienne situation ancienne situation
 

Canach, rue d‘Oetrange, aménagement et extension d‘un petit villa (en construction en 2025) Canach, rue d‘Oetrange, aménagement et extension d‘un petit villa (en construction en 2025)
 

vue vers jardin vue vers jardin
 

ancienne situation ancienne situation
 

Luxembourg-Bonnevoie, rue Pierre Krier: extension living Luxembourg-Bonnevoie, rue Pierre Krier: extension living